Как спроектировать дом самостоятельно с помощью программы Renga
- Renga Standard (для домашнего использования)
- Дружелюбный интерфейс и интуитивность
- Пример Романа, который уже спроектировал два дома в Renga
- С чего начать
- Удобная 3D-визуализация
- Рассчитать площадь
- Чертежи
- Инженерные системы
- Точный расчет количества материалов
- Любой материал можно добавить в программу
- Проекты Романа
- Выводы
Строительство дома – это серьезный проект. И один из первых вопросов, на который ищут ответ будущие новоселы: в какой программе сделать проект, чтобы он учитывал все требования, был понятен строителям, а саму программу не пришлось бы изучать слишком долго?
Программа Renga позволит каждому стать архитектором своего дома. Это хорошая возможность создать проект, который будет соответствовать вашим потребностям.
Renga Standard (для домашнего использования)
Платформа: Microsoft Windows 10 или новее (64-разрядная).
Поддержка русского языка: да
Стоимость: лицензия на 1 год на 1 ПК – 1 990 ₽, есть бесплатная пробная версия.
Дружелюбный интерфейс и интуитивность
Renga не пугает и не отталкивает при первом открытии или создании проекта. Интерфейс дружелюбный, контекстно-ориентированный. Это значит, что у вас в центре находится совсем немного кнопок для того, чтобы управлять проектом.
Это понятные всем кнопки «сохранить», «открыть», «экспортировать», «вывести на печать», опции настройки. Справа простая панель инструментов, в которые выведены знакомые для любого пользователя элементы: стена, колонна, балка, перекрытие, лестница, крыша, окно, дверь, ограждение и т. д. Эти элементы позволяют в объеме проектировать любое строение.
Рис 1. Простой интерфейс
С чего начать
При построении стены можно сразу выбрать материал. Здесь стоит отметить изначально, что различные материалы идут в поставке программы: кирпич, изоляция, железобетон, древесина, гипсокартон, сталь и другие. Если есть какой-то материал, который производится именно в данном регионе и нужно использовать именно его, то можно создать этот новый материал в проекте, назвать его как необходимо. Сразу можно указать свойства своего материала или уточнить на сайте производителя его плотность, теплопроводность и т. д.
Рис 2. Добавление нового материала
При выборе окон можно использовать встроенный базовый набор. Окно просто подводится к стене, и оно автоматически привязывается и вне стены не встанет. Поэтому это тоже интуитивно и помогает пользователю быстрее создать и расположить нужный элемент в необходимое место. То же самое с дверью.
Удобная 3D-визуализация
При работе в 2D видно только план, но нет понимания, например, на каком уровне находится окно, а какое оно по вертикали – большое или маленькое. И в целом нет такого представления о том, как проект будет выглядеть в действительности. А Renga позволяет посмотреть и оценить.
Можно создавать и интерьер: можно сразу проработать, куда мебель вписать с учетом текущей площади. Степень детализации элементов интерьера не ограничена. Также можно разбивать визуализацию по этажам.
Рис 3. Первый уровень коттеджа
Рассчитать площадь
Можно сразу же посмотреть, какие площади используются в проекте. Renga позволяет быстро считать информацию с модели и получать сразу площадные характеристики. Можно делать ровное или неровное помещение, менять перегородки – программа пересчитает площадь. Можно получить информацию в табличном виде – в программе есть элемент спецификации.
Рис 4. Расчет площади
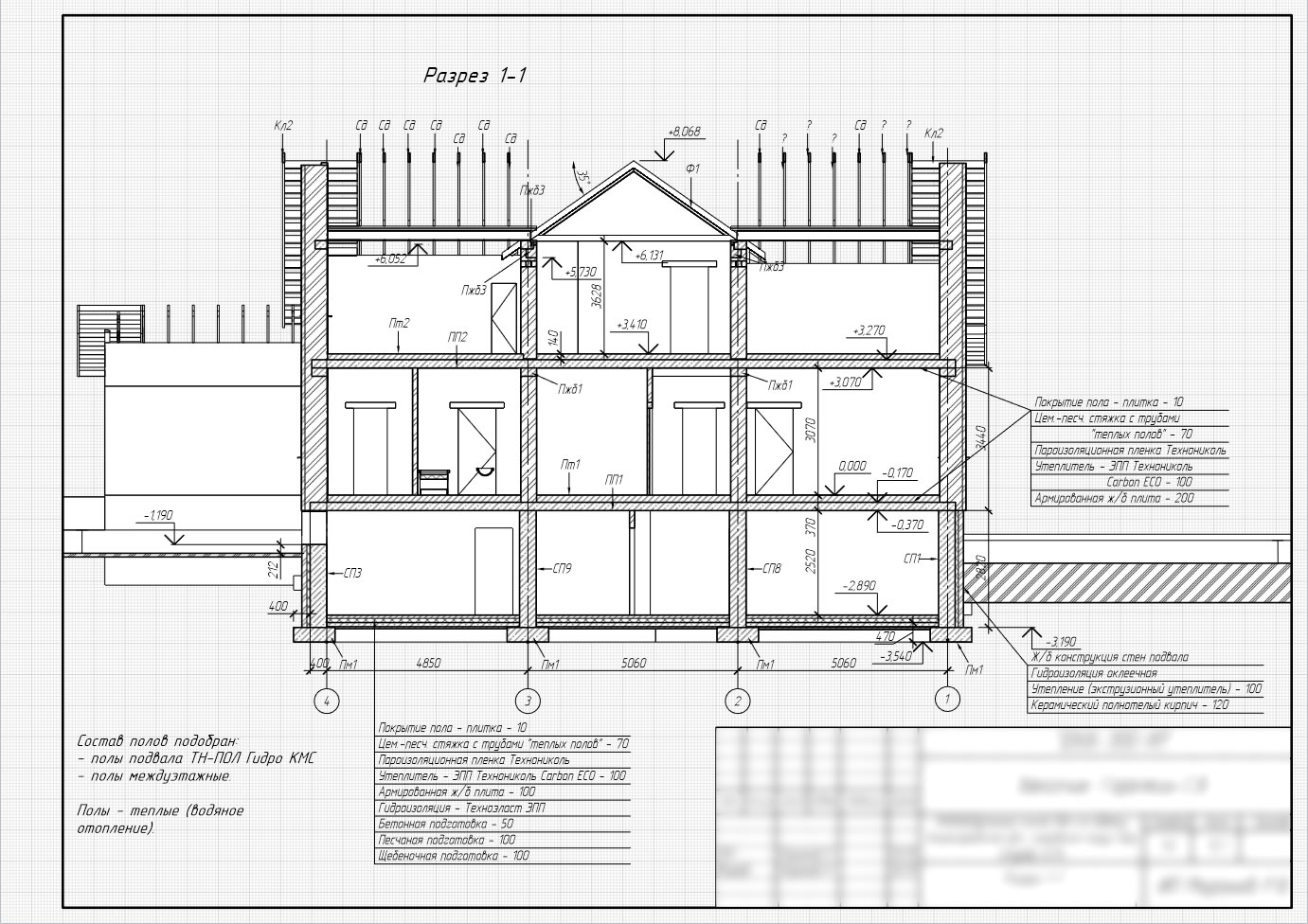
Чертежи
Трехмерное моделирование в Renga позволяет быстро оценить проектируемый дом, комнаты, помещения и принять правильные планировочные решения. Дальше нужны чертежи для строителей.
Трехмерные модели для большей наглядности
Строителям будет удобно, когда рядом с чертежами есть трехмерная модель, потому что не всегда нанимаются для строительства дома высококвалифицированные специалисты. Если есть чертежи, то легко понять точное положение окон и дверей. Renga позволяет видеть как трехмерную модель, так и отдельные чертежи. Модель можно распечатать и дополнительно сравнивать с чертежами.
Рис 5. Первичный план этажа и его трёхмерная реализация
Инженерные системы
Если пользователь может создавать не только стены, окна, двери, а еще, к примеру, имеет базовое представление об электрике, то можно проработать и инженерные сети. Так, в Renga можно расставить лампочки, чтобы примерно понять, где будут висеть люстры, а где расположатся выключатели. Можно указать места расположения кабелей. Даже если вы не электрик, то просто расположить выключатели будет несложно.
Рис 6. Электрика в 3D-модели
Рис 7. Чертежи электрической системы коттеджа
Точный расчет количества материалов
Построив модель дома, можно посмотреть и понять, сколько нужно кирпича или утеплителя, оконных стеклопакетов, дверей и т. д. Renga точно рассчитывает материалы, позволяя запланировать бюджет и исключить последующие неудобства в виде поиска внезапно закончившегося конкретного вида плитки или кирпича. Или наоборот, может оказаться, что осталось несколько лотков с кирпичами, а это значит – лишние потраченные деньги.
Любой материал можно добавить в программу
Большинство необходимых материалов для строительства уже содержатся в библиотеке программы. При этом если вам понадобится добавить какой-то конкретный материал, то это можно сделать с помощью BIM-каталогов на сайтах производителей. Скачанные каталоги интегрируются в Renga, и пользователь может добавлять в свой проект любые материалы и объекты из этих каталогов. То есть в программе можно сразу увидеть, как будет смотреться конкретный вид облицовочного кирпича в готовом доме.
Рис 8. Пример сайта с бесплатными каталогами для Renga, куда включены основные производители материалов.
Рис 9. Материалы из библиотеки с наглядной фактурой
Рис 10. Пример применения добавленного материала в проекте
Для крыши также можно использовать в проекте любой материал из каталогов производителей. Можно примерить разные цвета, чтобы попасть в тон проекта. Существуют также и библиотеки других материалов, и даже оборудования.
Рис 11. Пример варианта цветной крыши
Пример Романа, который уже спроектировал два дома в Renga
Я начал проектировать первый дом шесть лет назад. Когда я уже занимался его строительством, пришел к выводу, что архитектор работает в объеме, а инженеру и прорабу нужен чертеж. И Renga объединяет эти задачи.
Сначала я продумываю и создаю вид дома, а потом делаю чертежи. Перенос 3D-проекта в формат чертежа заложен в программу. На первых порах нужно было проставлять размеры и настраивать спецификации. Но потом накопились шаблоны, и проект стало делать быстрее. Когда уже есть заготовки, то можно нарисовать пару стен, из библиотеки взять типовую спецификацию – и Renga сразу посчитает, сколько утеплителей, кирпича и всех материалов нужно.
Для строителя всегда нужно сделать какой-то чертеж. Но надо учитывать, что рынок частного и профессионального строительства разный. То есть строители могут быть вообще без специального образования, и, если таким рабочим давать сложные чертежи, они могут вас не понять, а значит не сделают по документации. Поэтому наличие даже самой простой картинки дома плюс конструкции в объеме будет намного понятнее: здесь балкон, здесь окно в пол и так далее. Получается, что в этом случае Renga выступает в роли строительного переводчика, позволяя работать не только профессионалам, но и непрофессионалам.
Я инженер, поэтому делаю и сложные детали тоже, продумываю все до мелочей. В плоскости затруднительно придумать сложную конструкцию, как она работает, на что опирается. А когда в объёме – появляется возможность для творчества. Ведь для решения одной и той же проблемы может быть несколько вариантов. И чтобы выбрать лучший, более дешевый, в идеале, пока в объёме это всё рисуется, в голове уже прикидывать лучший вариант. Когда в объёме всё это – это уже более интересные решения могут получаться.
Renga является еще и моей личной библиотекой накопления знаний. Если к нарисованным элементам проекта добавлять подписи и заполнять свойства, то через пять лет при проектировании постройки можно поднять данные и увидеть, где и как идёт кабель внутри дома. Или через через 10 лет, когда нужно сделать ремонт, посмотреть чертежи, увидеть, как трубы в полу проходят или тёплый пол, где можно сверлить, а где нет.
Или еще, я нарисовал в Renga план своего сада, реализовал его, посадил цветы, и в свойствах заполнил: когда посадил, в какие месяцы нужно удобрять, какие удобрения, и дальше в виде таблички там получился некий график, когда что удобрять.
На мой взгляд Renga – гибкая программа, в ней много чего можно делать. Например, она не предназначена для ландшафтного дизайна. И, конечно, профессиональные ландшафтники в ней ничего делать не будут. Но если речь идёт о проекте для себя, то я смог в Renga разбить сад, проложить дорожки, рассчитать спецификацию, и даже понять, сколько мне нужно бордюрного камня. А кто-то с помощью этой программы делает планировку квартиры.
Проекты Романа
Загородный дом
Рис 12. Рендеринг дома
Рис 13. 3D-модель
Рис 13. План этажа
Рис 15. чертеж загородного дома
Двухэтажный коттедж
Рис 16. 3D-модель коттеджа
Рис 17. Первичный план
Рис 18. Планы этажей
Выводы
Использование программы Renga позволяет любому человеку, даже без специальной подготовки, успешно спроектировать собственный дом. Благодаря простоте интерфейса, широкому функционалу и доступным библиотекам готовых элементов процесс проектирования становится удобным и быстрым. Возможность визуализации проекта в трех измерениях обеспечивает точное представление будущего жилища, а инструменты расчета площадей и составления смет помогают избежать ошибок и сократить расходы. Таким образом, Renga является отличным выбором для тех, кто хочет самостоятельно реализовать свою мечту о собственном доме.
Автор статьи: Олеся Сазонова.
Редактор: Наталья Пака.



